Používame cookies

Súbory cookie a ďalšie technológie sledovania používame na zlepšenie vášho zážitku z prehliadania našich webových stránok, na to, aby sme vám zobrazovali prispôsobený obsah a cielené reklamy, na analýzu návštevnosti našich webových stránok a na pochopenie toho, odkiaľ naši návštevníci prichádzajú. Viac info

 

Predaj Stráne pod Tatrami 4 izb. ,2 generačný RD 215 m2 .

Interné ID: 117
Obec: Stráne pod Tatrami
Okres: Kežmarok
Kraj: Prešovský kraj
Druh: Domy
Typ: Predaj
Typ domu: Rodinný dom
185 000 €

Popis nehnuteľnosti

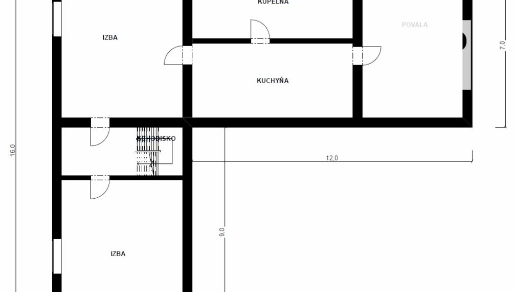
TOP – CITY Poprad v obci Stráne pod Tatrami ponúka na predaj veľký 2 generačný 4 izbový rodinný dom o ploche cca 215 m2 ležiaci na pozemku o ploche 1460 m2. Jedná sa o dvojpodlažný dom pozostávajúci z prízemia a poschodia .Na prízemí sa nachádza vstupná predsieň ,veľká obývačka s barovým pultom ,kuchyňa ,veľká kúpeľňa s vaňou ,sprchovacím kútom a samostatným WC. Ďalej sa na prízemí nachádza spojovacia chodba ,ďalšia izba s kúpeľňou a WC a schodisko na poschodie .Na poschodí sa nachádzajú 2 izby, kuchyňa ,kúpeľňa s WC a povala cca 55 m2.Dom je čiastočne podpivničený cca 80 m2, kde sa nachádza miestnosť s kotlom . Základy domu a pivnica je kamenná no samotný dom je postavený z tehál. V priebehu rokov 2010 až 2015 prešiel výraznou rekonštrukciou ( bola vymenená elektroinštalácia, vodovodne potrubia ,kúrenie) .Podlahy v dome sú drevené  v obývačke je plávajúca podlaha  v kúpeľniach je dlažba. Je napojený na obecný vodovod, kanalizácia je riešená formou septiku ,plyn je v dosahu domu. Kúrenie je ústredné na pevne palivo , drevo, alebo pelety. V kúpeľniach je podlahové kúrenie. Na veľkom pozemku sa nachádza dvoj garáž, malá šopa na drevo, a letný domček. Viacej sa o uvedenej nehnuteľnosti dozviete na tel. čísle 0907 691776,alebo na jagersky@topcity.sk.

Vlastnosti

Status:
aktívne
Vlastníctvo:
osobné
Plocha pozemku:
1460 m2
Typ zeme:
rovina
Teritórium:
Intravilán
Šírka pozemku:
26 m
Dĺžka pozemku:
56 m
Úžitková plocha:
215 m2
Zastavaná plocha:
135 m2
Podlahová plocha:
215 m2
Stav:
čiastočne prerobený
Energetický certifikát:
žiadne
Energetická náročnosť budovy:
Klasické materiály
Typ budovy:
tehla
Typ výbavy:
nevybavený
Garáž:
áno
Pivnica:
áno
Sklad:
áno
Rok poslednej rekonštrukcie:
2020
Rok kolaudácie:
1928
Počet poschodí od prízemia vyššie:
1
Celková plocha:
215 m2
Počet garáží:
1
Plocha garáže:
140 m2
Pivnica plocha:
80 m2
Počet pivníc:
1
Orientácia:
juhovýchod
Inžinierske siete:
áno
Voda:
áno
Elektrika:
áno
Voda - na pozemku:
áno
Voda - na pozemku - studňa:
áno
Elektrika - na pozemku:
áno
Elektrika - na pozemku - 230 V:
áno
Elektrika - blízko pozemku - 380 V:
áno
Vykurovanie - centrálne:
áno
Vykurovanie - podlahové:
áno
Vykurovanie - lokálne:
áno

Informatívna úverová kalkulačka

Pozrieť na mape

Maklér

Ing. Ján Jágerský

Ing. Ján Jágerský

Realitný maklér

  • Slovensky
  • Česky
  • English

Radi Vám poradíme

Podobné nehnuteľnosti